Plavecký bazén Havlíčkův Brod
Plavecký bazén Havlíčkův Brod
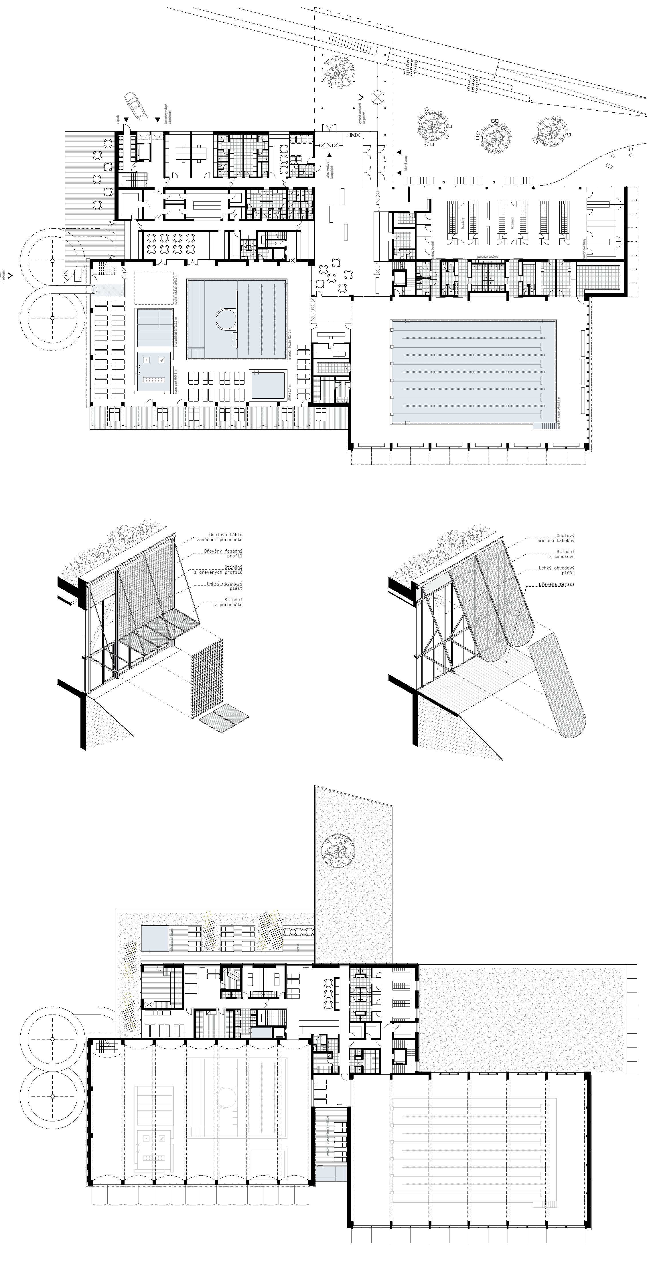
  1. Situace v Havlíčkově Brodě přináší unikátní možnost umístit nový bazén do prostředí se vzrostlou zelení,
  2. které má charakter lesoparku a navíc je v přímé vazbě na venkovní koupaliště. Předobrazem se nám stal „bazén v lese“, tedy objekt, který je zasazený přímo do přírodního prostředí, kterým je bezprostředně obklopen.

  3. Co se týče pojetí vnitřního prostředí bazénu, zejména tedy obou plaveckých hal, hledali jsme jakousi rovnováhu mezi civilností a vznešeností, na kterou jako by se u moderních bazénů začalo trošku rezignovat. Rozhodli jsme se proto nabídnout dvě odlišné, navzájem komplementární atmosféry. Kondiční bazén umocňuje svým racionálním pojetím klidný dojem, lehkost a civilní charakter. Prostor relaxačního bazénu vtahuje do hry zmíněnou vznešenost, když kombinuje racionální halový betonový skelet s „klenutým“ podhledem, který má zároveň akustickou funkci. Za pomoci tohoto jednoduchého a nenákladného prostředku lze docílit atmosféry, která evokuje archetyp antických lázní.

Odměněný návrh v architektonické soutěži / 4.-6. místo

místo / Havlíčkův Brod

rok / 2025

velikost / 6 640m2

orientační náklady / 425 mil. CZK

fáze / soutěžní návrh

architekt / Tomáš Hanus, Jan Holub

spolupráce / Filip Ohlsen

vizualizace / SDAR